Exploring 3 Bedroom Double Wide Floor Plans All Bed 12×10
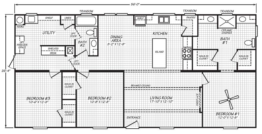
Many families look for homes that give everyone their own space. If you want 3 bedroom double wide floor plans all bed 12×10, you are in the right place. These plans make sure all three bedrooms are the same size, about 12 feet by 10 feet. This setup is great for fair room sharing among kids or guests.
Double wide homes, also called manufactured homes, are built in factories and then put together on your land. They cost less than regular houses but still feel big and nice. A 12×10 bedroom is 120 square feet. That is big enough for a queen bed, dresser, and desk. It works well for kids’ rooms or guest spaces.
In this guide, we will look at why these 3 bedroom double wide floor plans all bed 12×10 are popular. We will talk about layouts, benefits, and tips to pick the best one for your family.
Why Choose Double Wide Homes?
Double wide home floor plans are loved by many homeowners. They give more room than single-wide homes. Most double-wides are 1,000 to 2,400 square feet. That is plenty for a family. Factory Select Home Center: Double Wide Floorplans1
These homes are affordable. You get a lot of space for less money. Many come with modern looks, like open kitchens and big living areas.
3 bedroom modular homes are similar but can be set on a foundation. Both types let you customize. You can pick colors, floors, and more.
Benefits of Equal Bedroom Sizes
When all bedrooms are 12×10, it keeps things fair. No one gets a tiny room. This is perfect for families with children. Everyone has space for toys, homework, or relaxation.
A 12×10 room fits:
- A full or queen bed
- Nightstands
- A closet
- A small play area or desk
Many double wide house layouts put the main bedroom on one end. The other two bedrooms are on the opposite side. This split plan gives parents privacy.

factoryselecthomecenter.com

factoryhomes.com

Popular Features in 3 bedroom double wide floor plans all bed 12×10
Most 3 bedroom double wide floor plans all bed 12×10 have these common parts:
- Open concept living room, dining area, and kitchen
- 2 bathrooms (one main, one in the master suite)
- Laundry room
- Walk-in closets in some bedrooms
The kitchen often has an island. This makes cooking and eating together easy. Many plans include energy-saving features, like good insulation.
Family-friendly floor plans focus on flow. Kids can play in the living room while parents cook. Bedrooms are away from noisy areas.
Open Concept Designs
Open concept double wide homes are very popular now. Walls are removed between the living room and kitchen. This makes the home feel bigger.
You can watch the kids from the kitchen. It is great for parties too. Add a big table for family meals.

titanfactorydirect.com

How to Pick the Right Layout
Look at these when choosing double wide home plans with 3 bedrooms:
- Total square feet – Many are 1,400 to 1,800 sq ft.
- Bathroom count – Most have 2.
- Master suite size – Often bigger than 12×10.
- Outdoor space – Some have porch options.
Customizable double wide homes let you change things. Move walls or add extras.
Think about your land. Double wides need space for setup.
Bedroom Placement Ideas
In many 12×10 bedroom floor plans, the two smaller bedrooms share a bath. The master has its own.
This split setup is quiet. Parents get peace on one end.
Some plans put all the bedrooms together. This is good for young kids who need help at night.
Making Bedrooms Cozy
Even at 12×10, you can make rooms nice. Use these tips:
- Paint walls in light colors to make it feel big.
- Add built-in shelves for storage.
- Use bunk beds if needed for more floor space.
- Put in good lights for reading.
Double wide home interior design can be modern or cozy. Pick what your family likes.
For more ideas on making your home pretty, check out this guide on easy home makeover tips.
Costs and Value
Affordable double wide homes start lower than site-built houses. You save on building time, too.
Many families pick manufactured home designs because they are strong and energy-efficient.
Look for 3 bed 2 bath double wide plans. They are common and practical.
Why They Are Efficient
Efficient home layouts waste no space. Hallways are short. Rooms flow well.
Many have double wide home dimensions that fit small lots, too.
Small lot double wide plans work in suburban areas.
Modern Trends in Double Wide Homes
New modern 3 bedroom double wide floor plans have:
- Big windows for light
- Farmhouse style kitchens
- Smart home options
For smart home ideas, see this article on making your home smarter.
3 bedroom mobile home plans with large bedrooms, like 12×1,0 are trending. Families want room to grow.
Double wide homes with open living and 12×10 bedrooms mix space and privacy.
Customizing Your Home
Customizable 3 bedroom prefab home floor plans are easy to change. Add:
- Extra storage
- Bigger closets
- Different counters
Talk to dealers about options.
Family-friendly double wide house designs with 12×10 bedrooms can fit your needs.
Examples of Great Plans
Many makers offer plans close to 3 bedroom double wide floor plans all bed 12×10.
Look for models around 1,500 sq ft. Secondary bedrooms are often near 12×10.
Some popular ones have open kitchens and split bedrooms.

Tips for Buying
- Visit home centers to see models.
- Check land rules for manufactured homes.
- Get financing early.
- Think about setup costs.
Spacious family home plans like these make moving easy.
Best 3 bedroom double wide floor plans with 12×10 bedrooms balance cost and comfort.
FAQs
What is a double-wide home?
A double-wide home is a type of manufactured home made from two separate sections. These sections are built in a factory and then trucked to your land. Workers join them together on-site to make one big, wide home. It looks and feels like a regular house, but is often cheaper and faster to get.
Are all bedrooms exactly 12×10?
No, not all bedrooms are exactly 12×10 feet. Many secondary bedrooms (for kids or guests) are close to that size, like 11×12 or 12×12. The master bedroom is usually much larger, often 14×16 or bigger, with its own bathroom and closet space. Sizes can vary by model and manufacturer.
Can I customize it?
Yes, most double-wide homes are highly customizable. You can choose floor plans, colors, cabinets, flooring, and appliances before it is built. Some changes, like adding porches or extra windows, can happen after setup, too. Talk to your dealer early to see all the options available.
How much space do I need?
You need a lot big enough for the home, plus some extra room around it. A typical double-wide is about 28-32 feet wide and 40-80 feet long, so plan for at least half an acre. Check local rules and talk to your dealer—they will measure and tell you the exact lot size needed. Make sure there is space for delivery trucks, septic, well, and driveway too.
Conclusion
3 bedroom double wide floor plans all bed 12×10 offer great value for families. They give equal rooms, open spaces, and affordable prices. These double wide home layouts work well for suburban or rural living.
With options like open concept double wide homes and modern features, you can find a home that fits your life.
If you want more space without high costs, look into affordable 3 bedroom double wide modular home layouts.
Reference
- Factory Select Home Center: Double Wide Floorplans – See many examples of 3-bedroom double-wide homes. ↩︎
